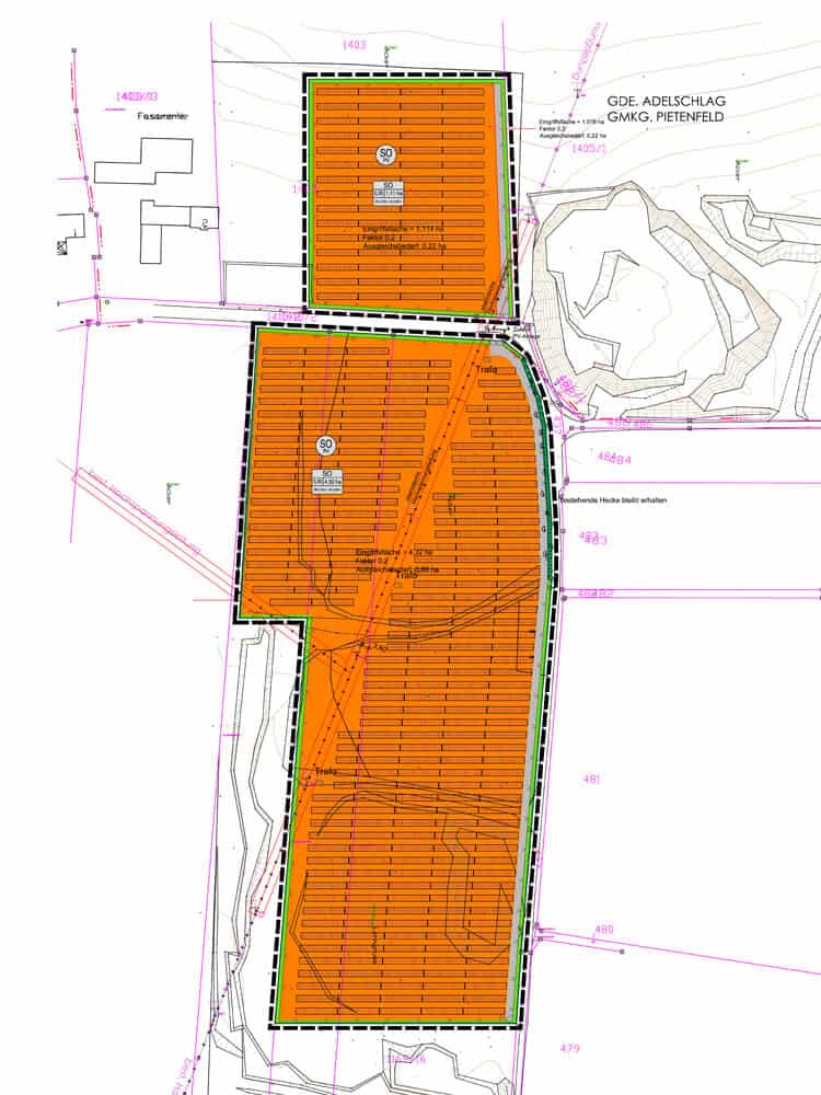
Photovoltaikanlage Fasanerie Adelschlag (Konversionsfläche)
Ort:
Adelschlag
Auftraggeber:
Solarpark LYNX GmbH & Co. KG
Errichtung einer Photovoltaikanlage (Konversionsfläche)
Bebauungs- und Grünordnungsplan
Bauantrag
Umweltbericht
Eingriffs-/Ausgleichsbilanzierung

Photovoltaikanlage Fasanerie Adelschlag (Konversionsfläche)

Aufgrund der exponierten Lage der PV-Anlage im Gelände und unter Berücksichtigung des Baugrunds (ehemaliges Ziegelwerk, Tongrube mit anschließender Verfüllung mit Fremdmaterial, Rekultivierung weitestgehend abgeschlossen) wurde bei der Planung und Genehmigung der 7 ha großen Anlage mit einer Gesamtleistung von 3,3 MW/p. sehr viel Wert auf die ökologische Gestaltung und die Schaffung entsprechender Ausgleichsmaßnahmen gelegt. Besonders erwähnenswert ist die Anbindung eines vorhandenen Biotops in die Gesamtplanung. Die Bauleitplanung wurde im Hinblick auf die angestrebte Einspeisevergütung in einem extrem kurzen Zeitraum durchgeführt.